Thiết kế nhà phố 4 tầng được xem là xu hướng thiết kế nhà ở hiện nay. Loại hình nhà ở này đáp ứng được nhu cầu sử dụng của đại đa số người dân. Chi phí xây dựng phù hợp, có tính sử dụng cao, tính thanh khoản cũng cao hơn. Trong đó, không thể không nhắc đến các mẫu nhà phố 4 tầng mặt tiền 5m. Mặt tiền rộng 5m đủ để bố trí cửa lớn, ban công giúp lấy sáng và gió tốt. Công năng đa dạng, vừa để ở, vừa kết hợp kinh doanh hoặc cho thuê.

1. Các phong cách thiết kế nhà phố 4 tầng mặt tiền 5m
–Phong cách hiện đại: Đường nét tối giản, cửa kính lớn, không gian mở

-Tân cổ điển: Cột trụ sang trọng, hoa văn tinh tế, lan can sắt mỹ thuật

–Tối giản (Minimalism): Tối ưu công năng, không gian thoáng đãng

–Phong cách xanh (Eco-home): Cây xanh trong nhà, giếng trời, vật liệu thân thiện môi trường

2. Cách bố trí công năng tối ưu cho nhà phố 4 tầng 5m mặt tiền
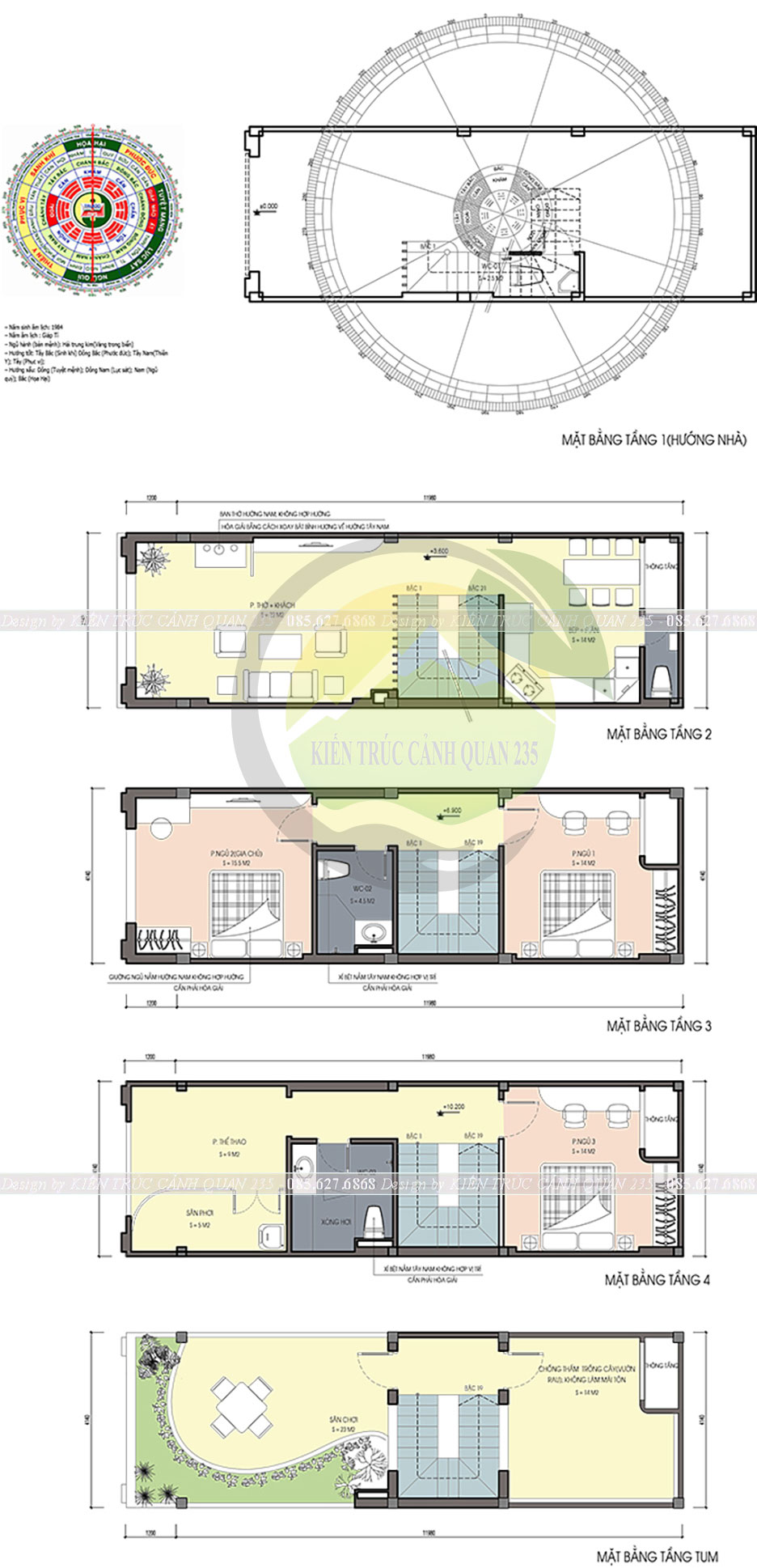
Tầng 1: Không gian sinh hoạt chung và để xe
- Khu vực để xe: Thiết kế ở phía trước, có thể tích hợp cửa cuối để tiết kiệm diện tích.
- Phòng khách: Thiết kế liên thông với bếp để tạo cảm giác rộng rãi. Sử dụng giếng trời hoặc cửa kính lớn giúp lấy ánh sáng tự nhiên tốt hơn.
- Bếp và phòng ăn: Sử dụng hệ thống hút mùi tốt, có cửa sau hoặc giếng trời để thông gió.
Tầng 2 & 3: Khu vực nghỉ ngơi, làm việc
- Phòng ngủ: Mỗi tầng có thể bố trí 1-2 phòng ngủ với cửa sổ lớn hoặc giếng trời để lấy sáng.
- Phòng làm việc/ phòng sinh hoạt chúng: Nếu không cần nhiều phòng ngủ, có thể tận dụng không gian làm phòng làm việc hoặc phòng sinh hoạt chung.
Tầng 4: Không gian thờ cúng và sân phơi
- Phòng thờ: Đặt ở phía trước nhà, hướng hợp phong thủy, sử dụng cửa sổ hoặc vách kính lấy sáng nhẹ nhàng.
- Sân thượng: Là nơi thư gian, có thể bố trí tiểu cảnh, cây xanh hoặc trồng một số loại rau ăn hàng ngày.
- Khu vực giặt phơi: Bố trí phía sau, có mái che hoặc giàn phơi thông minh để tối ưu không gian.

2.2 Giải pháp lấy sáng và thông gió cho nhà phố 4 tầng
Giếng trời
- Đặt ở cầu thang giữa nhà hoặc cuối nhà để dẫn sáng tự nhiên xuống các tầng dưới.
- Kết hợp cây xanh hoặc tiểu cảnh dưới giếng trời để tăng tính thẩm mỹ.
Cửa sổ, cửa kính lớn
- Sử cụng cửa sổ lớn hoặc cửa lùa kính để tối đa hóa ánh sáng tự nhiên.
- Lắp rèm hoặc kính cường lực chống năng để tránh ánh sáng gắt.
Thông gió tự nhiên
- Kết hợp cửa sổ mở đối lưu ở mặt trước và sau nhà để không khí lưu thông.
- Dùng vách ngăn thoáng thay vì tường kín giúp không khí dễ dàng lưu thông giữa các khu vực.
- Thiết kế mái lấy gió hoặc lam chắn nắng giúp điều hòa không khí.
3. Những mẫu nhà phố 4 tầng mặt tiền 5m đẹp và ấn tượng
- Mẫu 1: Nhà phố hiện đại với mặt tiền kính cường lực.


- Mẫu 2: Nhà ống 4 tầng phong cách Tân cổ điển với ban công sắt nghệ thuật.

- Mẫu 3: Nhà phố có gara ô tô, thiết kế lệch tầng giúp tối ưu diện tích.



- Mẫu 4: Nhà phố kết hợp kinh doanh, mặt tiền ấn tượng.

- Mẫu 5: Nhà phố có không gian xanh với giếng trời và cây cảnh.



4. Một số mẫu nhà phố 4 tầng ngang 5m ấn tượng











5. Chi phí thiết kế và xây dựng nhà phố 4 tầng mặt tiền 5m
5.1 Chi phí thiết kế: Báo giá tham khảo từ các đơn vị kiến trúc.

5.2 Chi phí xây dựng: Phụ thuộc vào phong cách, vật liệu và địa phương.
1. Diện tích và quy mô xây dựng
Chi phí xây nhà phố 4 tầng nói chung đều phụ thuộc vào diện tích của ngôi nhà. Nhà càng rộng thì chi phí càng cao. Tổng diện tích xây dựng thường tính bằng diện tích sàn x số tầng.
2. Phong cách thiết kế và kiến trúc
- Thiết kế đơn giản (hiện đại, tối giản) sẽ tiết kiệm chi phí hơn so với Tân cổ điển hoặc cổ điển (vì có nhiều chi tiết trang trí).
- Kết cấu: Nhà có kết cấu phức tạp, nhiều dầm, cột lớn hoặc sử dụng các vật liệu đặc biệt sẽ tăng chi phí.

3. Chất lượng vật liệu xây dựng
- Vật liệu thô: Xi măng, cát, đá, sắt theo ảnh hưởng trực tiếp đến chi phí
- Vật liệu hoàn thiện: Gạch ốp lát, sơn, cửa, thiết bị vệ sinh, hệ thống nước điện, …có nhiều phân khúc giá khác nhau.
- Móng nhà: Nếu nền đất yếu, cần gia cố móng bằng cọc bê tông, chi phí sẽ cao hơn.
4. Chi phí nhân công
- Giá nhân công phụ thuộc vào từng khu vực. Ở các thành phố lớn, mức giá thường sẽ cao hơn so với các tỉnh.
- Việc gia chủ thuê nhà thầu trọn gói thì chi phí cũng khác so với tự thuê nhân công.
5. Vị trí xây dựng
- Công trình xây tại khu vực trung tâm thì vật liệu và nhân công thường cao hơn so với ngoại ô.
- Hoặc các công trình ở ngõ nhỏ, khó vận chuyển vật liệu cũng làm cho chi phí tăng lên.
6. Các yếu tố khác
Ngoài ra, cũng còn một số yếu tố khác ảnh hưởng đến chi phí xây dựng nhà phố 4 tầng như thời điểm xây dựng, giấy phép xây dựng, thủ tục pháp lý hay việc lựa chọn nội thất cho ngôi nhà.

6. Ước tính chi phí xây dựng nhà phố 4 tầng
Chi phí có thể chia thành hai mức chính:
6.1. Xây dựng phần thô + nhân công hoàn thiện
Mức giá tham khảo: 3.500.000 – 4.500.000 VNĐ/m²
Ví dụ: Nhà phố 4 tầng diện tích 5x15m (~300m² sàn)
Tổng chi phí phần thô: 1,05 – 1,35 tỷ VNĐ
6.2. Xây dựng trọn gói (bao gồm vật liệu hoàn thiện)
Mức giá tham khảo: 6.000.000 – 8.500.000 VNĐ/m²
Tổng chi phí hoàn thiện: 1,8 – 2,55 tỷ VNĐ
Lưu ý: Giá có thể thay đổi tùy vào khu vực, thời điểm xây dựng và yêu cầu cụ thể của chủ nhà. Bạn đang có ngân sách dự kiến khoảng bao nhiêu để mình tư vấn phương án phù hợp?
7. Kinh nghiệm xây dựng nhà phố 4 tầng 5m
- Chọn đơn vị thiết kế uy tín: Lưu ý về phong cách, báo giá và kinh nghiệm thực tế.
- Pháp lý xây dựng: Giấy phép, quy định về chiều cao, lộ giới.
- Thiết kế nội thất hợp lý: Tối ưu không gian nhỏ, tận dụng ánh sáng tự nhiên.
- Giải pháp chống nóng và cách âm: Cửa kính hai lớp, cây xanh, vật liệu cách nhiệt.
Nếu bạn đang có kế hoạch xây dựng nhà phố 4 tầng mặt tiền 5m và cần một giải pháp về tối ưu thiết kế, chi phí cũng như chất lượng thi công, việc lựa chọn một đơn vị uy tin là rất quan trọng. Một đơn vị uy tín, có kinh nghiệm lâu năm sẽ giúp bạn tối ưu công năng, đảm bảo tiến độ và kiểm soát được chi phí hiệu quả hơn.
Đừng ngần ngại liên hệ với Kiến Trúc Cảnh Quan 235 để hiện thực hóa giấc mơ sở hữu ngôi nhà của mình. Với đội ngũ kiến trúc sư nhiệt huyết, chúng tôi sẽ nỗ lực mang đến không gian sống tối ưu và đậm nét cá nhân. Hotline liên hệ: 085.627.6868
- Nhà phố 6 tầng lô góc 2 mặt tiền hiện đại 64m2 tại Hà Nội – NP20
- BST nhà phố 4 tầng có gác lửng hiện đại, chuẩn xu hướng
- Biệt thự 1 tầng mái Nhật 3 phòng ngủ 250m2 tại Lâm Đồng – BT23
- 30+ Mẫu nhà phố 4 tầng mặt tiền 5m – Chi phí xây dựng năm 2025
- Mẫu nhà phố 4 tầng 1 tum 54m2 kết hợp kinh doanh – NP22











